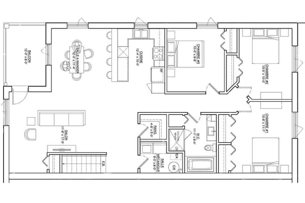
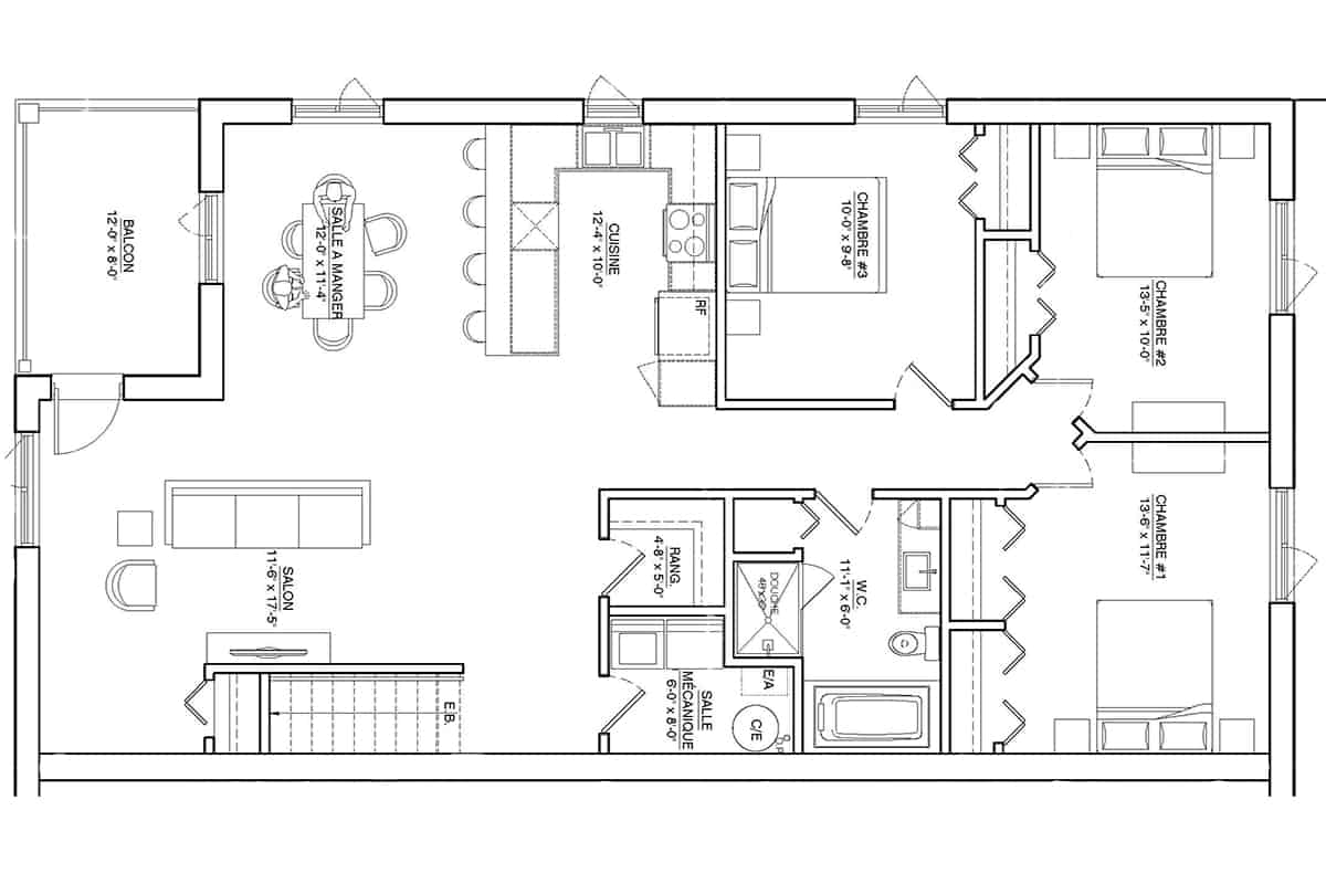
Beau logement de style condo, d’une superficie de ± 1366 pieds carrés. Ce logement, situé au dernier étage, vous offre une vaste et lumineuse aire commune comprenant la cuisine, salle à manger et le salon. La grande cuisine au goût du jour a un grand comptoir-lunch pouvant accueillir 4 personnes. Il y a un garde-robe de type walk-in pour l’entrée. Ce type de logement vous offre une salle de lavage indépendante avec beaucoup d’espace de rangement. Un aspirateur central et climatiseur mural sont a disposition. Vous disposerez également d’un espace dans une remise commune pour vos vélos et pneus.
Reconnu comme étant un espace de choix pour les activités de plein air, le Mont-Bellevue est accessible directement de votre logement à pieds via l’entrée de la rue Dunant. Ce parc vous offre la possibilité de faire de la randonnée, du ski de fond, du ski alpin, fatbike, de la raquette et de la glissade. Notre quartier de la rue Drouin est synonyme de quiétude urbaine, on peut même y apercevoir des chevreuils à l’occasion.
L’internet haute vitesse par modem de 1 Gigabit est inclus.