loading

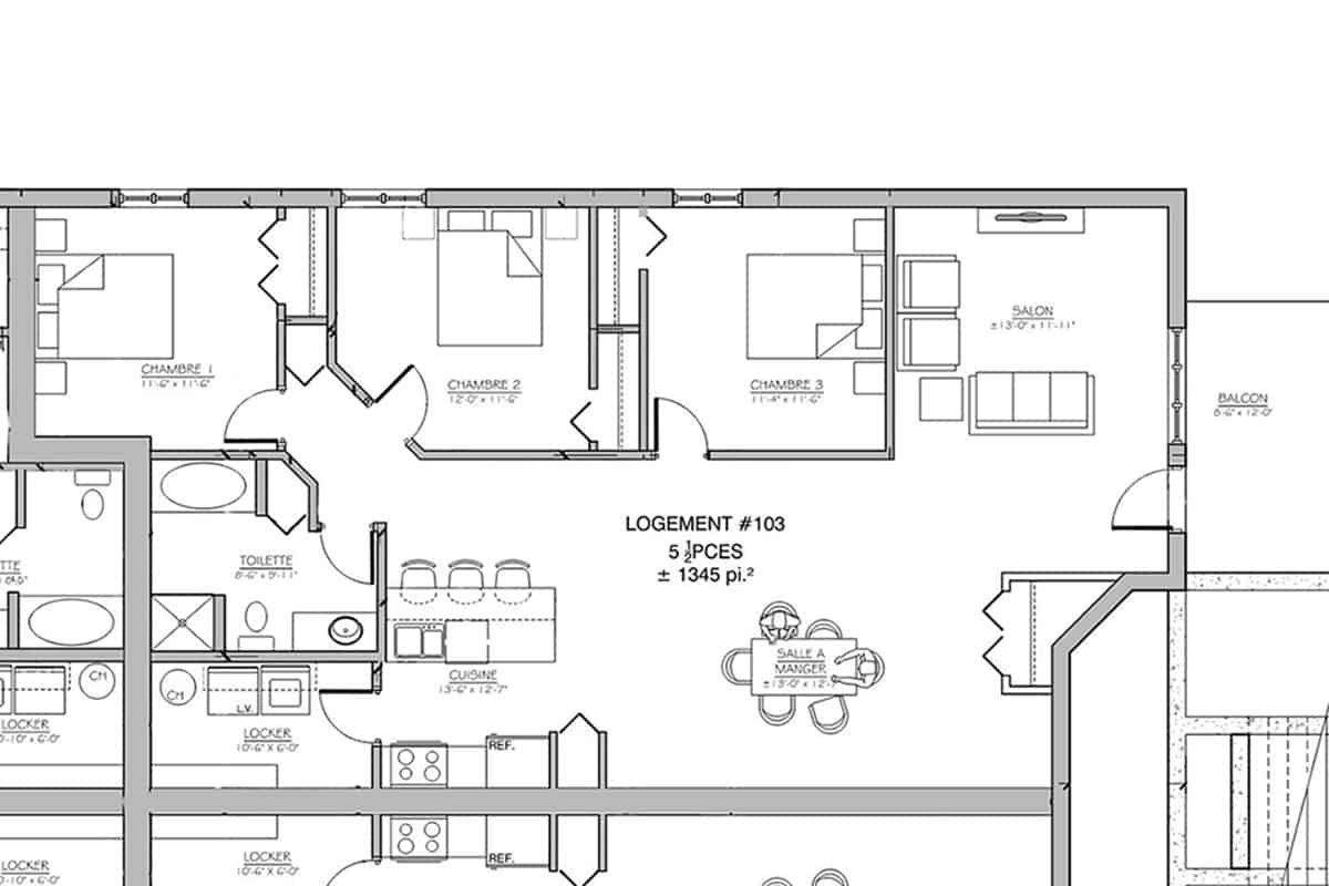
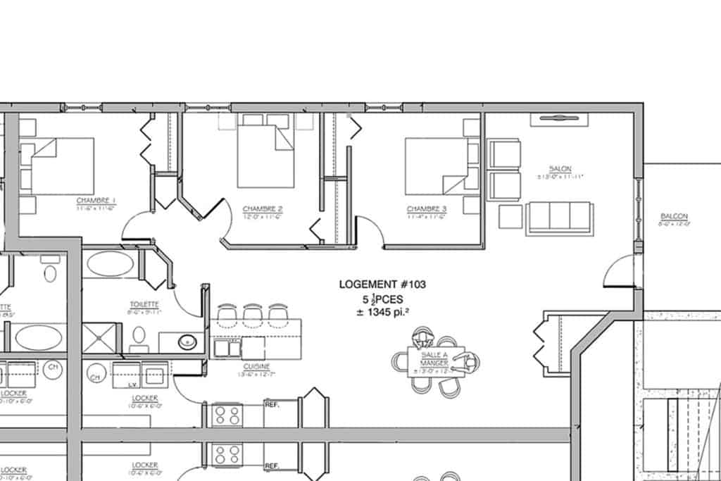
Modèle de logement 5½ Modèle A

Immeuble(s)
Logements disponibles en location utilisant ce modèle

Il n'y a aucun logement disponible en location dans cet immeuble. Contactez-nous pour connaître les prochaines disponibilités.

Grandeur et modèle

5½ Modèle A

Numéro de référence

DROU-12305A

Pièces et dimensions
  • Cuisine : 13'-6" x 12'-7"
  • Salle à manger : 13'-0" x 12'-7"
  • Salon : 13'-0" x 11'-11"
  • Salle de bain : 8'-6" x 9'-11"
  • Salle de lavage : 10'-6" x 6'-0"
  • Chambre 1 : 11'-6" x 11'-6"
  • Chambre 2 : 12'-0" x 11'-6"
  • Chambre 3 : 11'-4" x 11'-6"
  • Balcon : 8'-6'' x 12'-0''

Beau logement de style condo, d’une superficie de ±1345 pieds carrés. Ce logement est situé au premier balcon. Cet appartement au look moderne vous offre une vaste et lumineuse aire commune, un grand garde-robe d’entrée et beaucoup d’espace de rangement.  L’unité comprend une cuisine au goût du jour avec petit garde-manger distinct et grand comptoir-lunch pouvant accueillir plus de 3 personnes. Les trois grandes chambres à coucher permettent une colocation en toute discrétion.  Ce type de logement vous offre une salle de lavage indépendante avec beaucoup d’espace de rangement. Il y a un aspirateur central et climatiseur mural. La salle de bain comprend une belle grande douche en céramique avec panneaux de verre et bain séparé.  Vous disposerez d’un espace dans une remise commune pour vos vélos et pneus.

Reconnu comme étant un espace de choix pour les activités de plein air, le Mont-Bellevue est accessible directement de votre logement à pieds via l’entrée de la rue Dunant. Ce parc vous offre la possibilité de faire de la randonnée, du ski de fond, du ski alpin, fatbike, de la raquette et de la glissade. Notre quartier de la rue Drouin est synonyme de quiétude urbaine, on peut même y apercevoir des chevreuils à l’occasion.

L’internet haute vitesse par modem de 1 Gigabit est inclus.

 


À propos de l'immeuble


Ce logement vous intéresse ?