loading

Modèle de logement 3½ Modèle B

Immeuble(s)
Logements disponibles en location utilisant ce modèle

Il n'y a aucun logement disponible en location dans cet immeuble. Contactez-nous pour connaître les prochaines disponibilités.

Grandeur et modèle

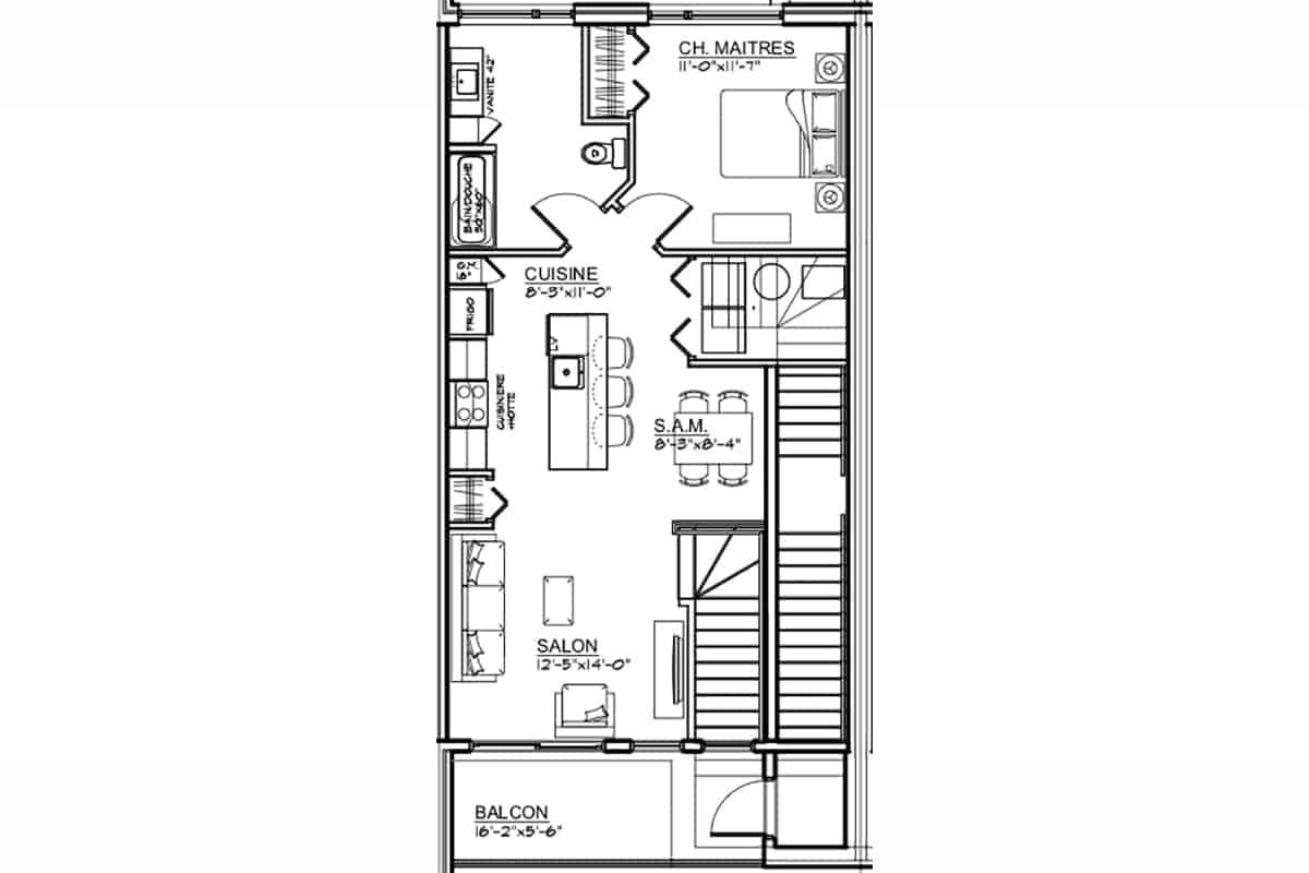
3½ Modèle B

Numéro de référence

MON-11183B

Pièces et dimensions
  • Cuisine : 8'-3" x 11'-0"
  • Salle à manger : 8'-3" x 8'-4"
  • Salon : 12'-5" x 14'-0"
  • Salle de bain : 6'-11" x 11'-7"
  • Chambre des maîtres : 11'-0" x 11'-7"

Beau logement de style condo, au 2e étage, d’une superficie de ± 800 pieds carrés. Ce logement au look moderne vous offre une vaste et lumineuse aire commune. Elle comprend une cuisine au goût du jour avec comptoir-lunch pouvant accueillir 3-4 personnes et salle à manger. Toutes les pièces ont de grandes fenêtres. La chambre est munie d’un garde-robe double. Une remise extérieure à même le logement est à votre disposition. Cet appartement est muni d’une thermopompe murale. L’internet est inclus, délivré par modem individuel dans chaque appartement, vous aurez 1 gigabit de capacité.


À propos de l'immeuble


Ce logement vous intéresse ?